Home Features
- Exterior Masonry
- Exterior Cedar Accents
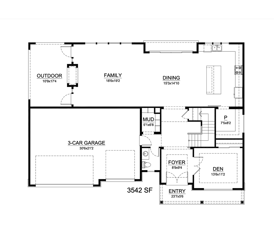
- Outdoor Living Area with Fireplace
- Three-Car Garage
- Covered Entryway
- First Floor Den
- Second Floor Bonus Bedroom
- Second Floor Junior Suite
- Master Bath
- Walk-in Closet
- Kitchen Island
- Mud Room
- Butler’s Pantry
- Pass-Through Fireplace
- Half Bath on the First Floor
- Two Full Baths on Second Floor
- Separate Shower and Bath in Master Bath
- Open Kitchen
- Kitchen Island
- Butler’s Pantry
- Energy Efficient Appliances & Fixtures
- Sourced Recycled Materials
- Construction Waste is Recycled



